案例介紹
AILESHIN 貓舍|台中商空設計

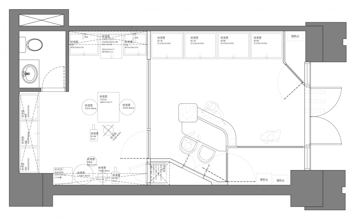
AILESHIN 貓舍
|室內11坪|商空|


AILESHIN 貓舍
奶油色調融合木質層次,營造出如家一般溫暖舒適的氛圍。
天花板的貓掌燈具與垂墜球體燈,為空間注入靈動的韻律。
從細膩的格柵套房到專業美容場域,貼心考量每一處細節,給予毛孩無微不至的呵護。
透明活動區錯落的雲朵層板,滿足貓咪登高望遠的習性,也讓主人能隨時捕捉牠們優雅的身影。

柔光落下,貓咪蜷縮在雲朵間,沉入恬淡慵懶的午後夢境。

Soft light falls as cats nestle among the clouds, drifting into a peaceful afternoon dream.


接待處|Reception Area
用大 C 型的溫柔弧度,迎接每一位尊貴的毛絨旅客。

是誰這麼不小心,在天花板留下了貓掌印記?

活動放風區|Play Area
穿梭於喵星秘密基地,尋找藏在天花板的驚喜足跡。
在木質迷宮與透明太空艙間,寫下今天的探險日記。



清潔作業區|Grooming & Cleaning Area

喵~~本皇專屬的沙龍時光。
洗淨探險後的每一根貓毛,重拾閃閃發亮的喵生自信。



貓咪生活區|Cat Living Area
攻佔制高點,探險終點是貓罐罐。

—虎癮山室內設計,專注打造專屬於你的生活劇本—

 


歡迎預約諮詢


預約諮詢 04-2437-4408 | facebook | instagram